- Ein Beispiel für die Berechnung der Abmessungen des Ofens
- Wie man mit eigenen Händen einen Altölkessel baut
- Option Nummer 1
- Option Nummer 2: ein Kessel auf Basis eines Dickbauchofens
- Eigenproduktion
- Zeichnungen und Montageplan
- Drucktropföfen
- Schritt-für-Schritt-Anleitung zum Selbermachen zum Bau eines Altölofens aus einem Zylinder
- Erstellen Sie eine Palette zum Ausarbeiten und Installieren eines Schornsteins eines Ölofens mit Ihren eigenen Händen
- Anschluss der Struktur im Bad
- Sicherheitsbestimmungen
- Gebrauchsanweisung für den Ofen
- Das Design und Funktionsprinzip des Heizgeräts
Ein Beispiel für die Berechnung der Abmessungen des Ofens
Wie oben erwähnt, beträgt der Kraftstoffverbrauch etwa 1 ... 2 Liter pro Stunde. Gleichzeitig beträgt die abgestrahlte Wärme etwa 11 kWh pro Liter. Somit kann der Ofen 11 ... 22 kW pro Stunde erzeugen. Um das erforderliche Volumen des Ofens unter Berücksichtigung der Brennzeit zu berechnen, akzeptieren wir:
- das Raumvolumen (Garage) - 7x4x2,5 \u003d 70 Kubikmeter, Fläche 28 qm;
- Wir glauben, dass für jeden Quadratmeter eines Garagenraums mindestens 500 W erforderlich sind (grundlegend 100 W, wir geben Koeffizienten für alle Außenwände, ein nicht isoliertes Dach und Fundament, eine große Eingangsöffnung, eine Metallkonstruktion an);
- dementsprechend benötigt eine Fläche von 28 Quadraten 14 kW Energie pro Stunde.
Wenn wir den Ofen leicht auf die Mindestleistung zwingen (den Luftzug erhöhen), erhalten wir die erforderliche Temperatur im Raum. Der Kraftstoffverbrauch steigt jedoch auf etwa 1,5 ... 1,6 Liter pro Stunde.Daher muss für eine Brenndauer von mindestens 6 Stunden das Volumen des Ofens 10 Liter betragen. Dies entspricht 0,001 Kubikmetern, dh der Behälter sollte beispielsweise eine Größe von 10 x 10 x 10 cm haben.In Wirklichkeit übersteigt das Volumen des Ofens das erforderliche Brennstoffvolumen um das 1,5- bis 2-fache, dh die Abmessungen sollte 20x10x10 cm oder mehr betragen, für einen Minikocher ist es geeignet. Normalerweise mit einem festen Rand aufgenommen, dh 50 x 30 x 15 cm, damit Sie nicht bei jedem Zünden Kraftstoff nachfüllen müssen.
Wichtig: Bei großen Ofengrößen muss das Feuer im Ofen während des Bergbaus gelöscht werden, bevor der Brennstoff vollständig ausbrennt. Der Abschreckvorgang wird im Video gezeigt..
Die Länge des Rohrs beträgt 40 cm bzw. sein Durchmesser 10 cm Die Fläche der Mantelfläche des Zylinders entspricht seiner Höhe multipliziert mit dem Umfang der Basis (Durchmesser multipliziert mit der Zahl π ), in unserem Fall 40x3,14x10 \u003d 1256 cm2. Dementsprechend beträgt die Fläche aller Löcher ein Zehntel der Gesamtfläche - 125,6 cm2. Da die Fläche eines Lochs mit einem Durchmesser von 10 mm gleich πx0,52=3,14x0,25=0,78 cm² ist, benötigt ein solches Rohr 125,6/0,78=160 Löcher.
Beachten Sie! Der akzeptierte Wert - die Fläche der Löcher beträgt 10% der Gesamtfläche der Seitenfläche des Rohrs - bedingt! Die Anzahl der Löcher bei der Herstellung ergibt sich unter anderem aus der Stärke des Produktes und ist meist deutlich geringer!
Wenn man bedenkt, dass der erweiterte Zylinder ein Rechteck von 31 x 40 cm ist und die Löcher in einem Schachbrettmuster platziert werden sollten, müssen wir 12 vertikale Reihen mit jeweils 13 oder 14 Löchern machen. Das Markieren der vertikalen Reihen ist einfach - teilen Sie den oberen oder unteren Umfang des Rohrbodens auf beliebige geometrische Weise in 12 Teile und zeichnen Sie vertikale Bohrlinien.
Der Abstand zwischen den Reihen beträgt 3,3 cm.Die Markierung der vertikalen Reihen ist etwas schwieriger, da in jeder zweiten Reihe der obere (oder untere) Markierungspunkt um den halben Abstand zwischen den Löchern verschoben werden muss. In Anbetracht der Tatsache, dass wir Löcher nicht am Rand des Rohrs bohren müssen, addieren wir 1 zur geplanten Anzahl von Löchern und berechnen den Schritt: Für 13 Löcher sind es 40 / (13 + 1) \u003d 2,85 cm, für 14 - 40 / (14 + 1) \u003d 2,6 cm.
Wichtig: Beim Bohren muss die Bohrerachse zur Rohrachse zeigen!
Wie man mit eigenen Händen einen Altölkessel baut
Für Altölkessel gibt es verschiedene Gestaltungsmöglichkeiten. Sie werden sogar im Laden verkauft.
Option Nummer 1
Um einen einfachen Altölkessel mit eigenen Händen herzustellen, benötigen Sie folgende Teile und Ausrüstung:
- Ölpumpe und Umwälzpumpe;
- Spezialbrenner und Luftkompressor;
- Fertigkessel mit eingebautem Ausdehnungsgefäß;
- Rohrabschnitte zur Ausstattung der Autobahnen.
Herstellungsschritte:
- Die Abgase werden über einen ölbeständigen Schlauch mit einer Ölpumpe direkt vom Kraftstofftank in die Zwangsverdampfungskammer geleitet. Um eine solche Verdampfungskammer herzustellen, sollten Sie ein Stück starkes und dickes Rohr nehmen, das Temperaturen von bis zu 400 Grad standhalten kann.
- In der Mitte dieser Kammer sollte ein kleines Rohr platziert werden, das dazu dient, Luft zuzuführen, die von einem Ventilator hineingeblasen wird.
- Durch das Einströmen von Luftmassen angereicherte Dämpfe brennen im Arbeitsraum aus und erhitzen so das Kühlmittel, das durch die Rohrleitungen zirkuliert.
Bestandteile des Kessels (alle Maße in Zentimetern)
Für eine qualitativ hochwertige Installation aller Elemente des Systems benötigen Sie ein Schweißgerät sowie Kenntnisse im Umgang damit.
Ein solcher Kessel liefert eine Leistung von 5-10 Kilowatt. Dies reicht aus, um einen Raum von bis zu 40 Quadratmetern gründlich zu erwärmen. m.
Option Nummer 2: ein Kessel auf Basis eines Dickbauchofens
Der einfachste Weg, einen Kessel zu heizen, ist die Herstellung eines Dickbauchofenkessels. Es wird aus zwei Kammern bestehen, die erste enthält das eingefüllte Altöl.
Die Verbrennung des Brennstoffs erfolgt stufenweise. Zunächst verbrennt der Brennstoff im ersten Abteil bei mäßiger Temperatur. Im zweiten werden mit Luft vermischte Produkte verbrannt, die durch die Verbrennung von Altöl gewonnen wurden. Die Temperatur im zweiten Fach beträgt etwa 800 Grad.
Das allgemeine Schema des Gerätes eines Dickbauchofens zum Trainieren
Bei der Herstellung eines solchen Kessels ist es erforderlich, beiden Brennkammern zusätzliche Luft zuzuführen. Dazu wird im unteren Tank ein Loch gemacht - es dient zum Einfüllen von Kraftstoff sowie zum Luftzugang. Zur Steuerung der Luftzufuhr ist das Loch mit einer Klappe ausgestattet. Durch kleine Löcher mit einem Durchmesser von etwa 10 mm tritt Luft in die obere Kammer ein. Sie sollten in das Rohr gebohrt werden, von wo aus die Verbrennungsprodukte aus der ersten Kammer zugeführt werden und beide Kammern verbinden.
Um einen Kessel zu bauen, benötigen Sie:
- Schweißmaschine (mindestens 200 Ampere).
- Perforator und Schleifer. Die Schleifmaschine sollte mit Reinigungs- und Trennscheiben, sowie einem Kreisdurchmesser von mindestens 125 mm genommen werden. Für einen Perforator sollte der Durchmesser des Bohrers mindestens 13 mm betragen.
- Vorschlaghammer.
- Tragen.
- Ein Hammer.
- Nieten.
- Meißel.
- Beinecke.
- Zange.
- Schutzbrille zum Schweißen.
Herstellungsprozess des Kessels
- Zunächst sollten Sie den Tank schweißen, der als unterer Behälter dient, in dem sich das Altöl befindet. Es sollte aus Blech sein.
- Dann müssen Sie im Kessel ein Loch schneiden, das für die Luftzufuhr erforderlich ist.
- Dann müssen Sie ein Ventil installieren, das die Luftzufuhr reguliert. Sie können es mit Nieten befestigen.
- Anstelle eines Schornsteinrohrs können Sie ein Rohr mit Löchern für den Luftstrom anbringen.
- Machen Sie eine Kammer mit einem abnehmbaren Deckel für das zweite Fach.
- Verbinden Sie die vorbereitete Kammer mit dem Rohr mit Löchern, wo die Sekundärverbrennung stattfindet.
- Verbinden Sie die obere Kammer mit der unteren, es sollten keine Lücken vorhanden sein.
- Das Stabilitätsdesign sollte mit einer Ecke befestigt werden.
- Schließen Sie das Schornsteinrohr in vertikaler Position an.
- Um den Kessel zu entzünden, füllen Sie das Altöl ein und zünden Sie es dann mit normalem Papier an.
Dies sind gute Optionen für ein Heimwerker-Heizgerät für ein Privathaus, das vielen zum Verkauf angeboten wird.
Eigenproduktion
Jeder kann das einfachste Design machen. Es gibt einige Schemata, wie dies zu tun ist, sie können verwendet werden, um den gesamten Produktionsprozess zu verstehen.
Es wird interessanter sein, einen aufgeladenen Altölofen in Betracht zu ziehen. Es gibt auch genügend Zeichnungen, aber die Konstruktion ist komplexer und erfordert daher zusätzliche Kenntnisse in diesem Bereich.
Sein Hauptvorteil besteht darin, dass Energie nicht in großen Mengen auf die Straße geworfen wird, sondern eine langsame Wärmeabfuhr organisiert wird.Der zweite wesentliche Unterschied ist das Vorhandensein einer Schublade für Öl, die die Reinigung erleichtert. In einfacheren (vollständig geschlossenen) Behältern ist dies äußerst schwierig.
Der Durchmesser der Rohre und das Volumen des Öltanks müssen entsprechend der Quadratur des beheizten Raums gewählt werden.
Für eine durchschnittliche Garage mit Abmessungen von 3 x 6 m benötigen Sie Teile in folgenden Größen:
- Profilrohr 75 × 75 × 4 cm;
- Brennstoffkasten 55×55×4 cm.
Für die Eigenproduktion müssen Sie die folgenden Schritt-für-Schritt-Aktionen durchführen:
- Schneiden Sie die Elemente der Schublade. Nachbrennerrohre müssen in einem Winkel von 45° geschnitten werden.
- In einem kleineren Profil wird mit einer Schleifmaschine ein Loch für die Box ausgeschnitten und die Seiten an den Seiten verschweißt. An der Box ist ein Griff angebracht.
- Die Struktur wird zusammengeschweißt und ein Loch für den Schornstein wird von oben gebohrt.
Für einen effizienteren Betrieb und eine maximale Wärmeentnahme wird empfohlen, eine Verlängerung in Form eines 3-Meter-Rohrs am Ofen anzubringen. Es wird den Kraftstoff verbrennen. Für ein höheres Maß an Sicherheit wird jedoch empfohlen, die Wände der Garage in der Nähe des Ofens mit Blechen zu verkleiden, alle Holzregale und brennbaren Substanzen aufzunehmen.
In diesem Video erfahren Sie mehr über den Bau einer Altölfeuerung:
In der letzten Phase ist es nur noch notwendig, den Brennstoff zu entzünden und den Betrieb des Ofens einzustellen. Gleichzeitig besteht die Hauptaufgabe darin, die Emission von schwarzem Rauch zu minimieren, da dies darauf hinweist, dass nicht genügend Luft im System vorhanden ist. Um diesen Parameter einzustellen, müssen Sie mehrere Löcher bohren und die Anzahl der Emissionen überprüfen. Aber eine große Anzahl von Löchern kann schaden. Rauch kann in den Raum entweichen. Daher muss die Anzahl der Löcher richtig eingestellt werden.
Eine Pipette herzustellen ist auch ziemlich schwierig, aber eine solche Aufgabe ist durchaus machbar. Für die Herstellung eines Tropfofens wird häufig ein Zylinder mit einem Durchmesser von 220 bis 300 mm für den Bergbau verwendet. Es hat ziemlich dicke Wände, um nicht lange zu brennen. Auch ein Stahlrohr mit einem Durchmesser von 5 mm oder mehr kann geeignet sein.
Eine ideale Option für diese Zwecke ist die Verwendung eines hitzebeständigen Chromrohrs mit einem Durchmesser von 3 mm oder mehr. Aber die Produktion wird nur dann billig, wenn das Rohr bereits verfügbar ist. Es lohnt sich nicht, dies speziell zu kaufen, da die Herstellung teuer sein wird.
Alle weiteren Details finden Sie auch im Haushalts- oder Radiomarkt. Beispielsweise eignet sich ein Zhiguli-Lüfter gut zum Aufladen. Metallrohre und andere Elemente sind an Altmetallsammelstellen erhältlich.
Die Produktionstechnologie des Tropfofens ist wie folgt:
- Die Schale für die Flamme wird aus einem Rohr gefertigt oder es wird ein fertiger Stahlbehälter genommen. Die Palette sollte nicht zu groß sein, da das Rohr durch die Luke entfernt werden muss.
- In dem Fall werden mit Hilfe einer Mühle Öffnungen für den Schornstein und die Reinigungsluke ausgeschnitten.
- Ein Nachbrenner wird hergestellt. Sie müssen nicht alle Löcher auf einmal machen. Es ist besser, ein Drittel der in der Zeichnung festgelegten Höchstmenge zu machen und den Rest während des Einrichtungsprozesses zu erledigen.
- Am Nachbrenner sind eine Abdeckung und eine Luftführung angeschweißt. In letzterem ist ein Lüfter montiert.
- Das Gerät wird montiert, eingestellt und auf Funktion geprüft.
Damit das Gerät auch wirklich zuverlässig rüberkommt, ist es besser, es in einem Stahlgehäuse unterzubringen. Es muss aus profilierten Rohren geschweißt werden. Um die Temperatur einzustellen, muss die Möglichkeit vorgesehen werden, die zugeführte Kraftstoffmenge zu ändern und den Lüfter zu blasen.
Erfahrene Benutzer haben gelernt, die verbrannte Kraftstoffmenge nach Augenmaß einzustellen. Wenn das Öl in Tropfen zugeführt wird, brennt weniger als 1 Liter pro Stunde aus, und wenn ein kleiner Strom beobachtet wird, dann mehr als 1 Liter. Um eine einfache Anpassung der Luftzufuhr zu installieren, können Sie auf dem chinesischen Markt ein günstiges PWM erwerben.
Nach dem Zusammenbau der gesamten Struktur muss deren Funktion überprüft werden. Das Vorgehen weicht nicht von den bisherigen Empfehlungen ab. Es gilt, einen möglichst sauberen Rauch zu erzielen und es gleichzeitig mit den Löchern im Zünder nicht zu übertreiben.
Wenn eine Person über eine bestimmte Erfahrung verfügt, ist es nicht schwierig, selbst einen komplexen Dickbauchofen aus abgebrannten Brennstoffen herzustellen. Wenn sich ein unerfahrener Meister noch nie für diesen Bereich interessiert hat, reicht das einfachste Design aus improvisierten Materialien aus.
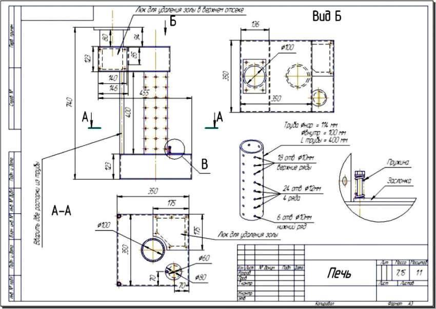
Zeichnungen und Montageplan
Die Herstellung des Ofens beginnt mit der unteren Kammer. Es ist im Ofen mit einem Brennstofftank kombiniert, auf dessen Deckel spezielle Löcher für die Bergbaubucht und für das Rohr, das die erste Kammer mit der zweiten verbindet, angebracht sind.
Entsprechend den in der Abbildung gezeigten Abmessungen werden Teile der Primärbrennkammer ausgeschnitten, die Kanten geschliffen und verschweißt. Die Wände werden aus einem Rohrrohling hergestellt.
An sie werden Ecken geschweißt, die zu Beinen werden, ein Blech wird an den Boden geschweißt. Ein 10 cm großes Loch wird in der Mitte und weitere 6 cm an der Seite, näher am Rand, geschnitten. Wenn gewünscht, machen Sie eine abnehmbare Abdeckung - es ist einfacher, den Tank zu reinigen.
In ein Rohr mit 36 cm Länge und 10 cm Durchmesser werden bis zu 50 Löcher mit einem Durchmesser von 9 mm gleichmäßig über die gesamte Rohrfläche gebohrt, damit der Luftstrom auf jeder Seite gleich ist.
Ein Rohr mit Löchern wird senkrecht zum Tankdeckel geschweißt.Am unteren Tank ist eine Luftklappe angebracht. Sichern Sie es mit Schrauben oder Nieten. Durch dieses Loch wird der Ofen gezündet und die Mine gefüllt.
Der obere Tank wird auf die gleiche Weise wie der untere hergestellt. In die Platte, die am Boden des Tanks befestigt ist, wird ein Loch mit einem Durchmesser von 10 cm gemacht, das zu einer der Kanten verschoben ist. Ein Rohrstück mit großem Durchmesser vom Loch wird an das Loch darunter geschweißt, gerade genug, um es auf die perforierte obere Brennkammer zu legen.
Da die Abdeckung des oberen Tanks den höchsten Temperaturen ausgesetzt ist, wird empfohlen, sie aus Metall mit einer Mindeststärke von 6 mm herzustellen. An der Oberseite des Tanks ist ein Loch für den Schornstein angebracht, das dem Loch im Boden gegenüberliegt. Dazwischen wird eine dicke Metallplatte gelegt - ein Cutter. Es wird näher am Kaminloch eingesetzt.
An die obere Abdeckung wird ein Rohr geschweißt, das dann mit dem Schornstein verbunden wird. Um die Stabilität der Struktur zu verbessern, wird ein Abstandshalter aus einem Rohr oder einer Ecke geschweißt. Sie können den Ofen mit Metallfarbe streichen, die hohen Temperaturen standhält.
Drucktropföfen
Ein Druckofen ist das gleiche Heizgerät, nur mit einem Ventilator ausgestattet. Er befindet sich näher an der zweiten Brennkammer. Das Gebläse sorgt für eine gleichmäßige Erwärmung des Raumes.
Der Zusammenbau eines Tropfofens ist schwierig. Industrielle Heizgeräte sind mit dem gleichen Mechanismus ausgestattet. Modelle dieser Art reduzieren den Kraftstoffverbrauch.
Moderne Handwerker haben gelernt, den Tropfmechanismus mit der Aufladung zu kombinieren. Es wird jedoch dringend davon abgeraten, ein solches Gerät ohne die entsprechenden Fähigkeiten zusammenzubauen.
Schritt-für-Schritt-Anleitung zum Selbermachen zum Bau eines Altölofens aus einem Zylinder
Das Gerät kann anhand der mitgelieferten Zeichnungen der Altölfeuerung aus alten Gegenständen angefertigt werden. Für diesen Vorgang benötigen Sie eine Gasflasche mit einem Fassungsvermögen von 50 Litern. Außerdem sollten Sie vorbereiten:
- ein Rohr mit einem Durchmesser von 80-100 mm und einer Länge von 4 m;
- Stahlecke für die Herstellung des Ständers und der Innenelemente des Wärmetauschers;
- Stahlblech zur Herstellung des Bodens der oberen Kammer und des Stopfens;

Für die Herstellung eines Altölofens benötigen Sie eine Gasflasche mit einem Fassungsvermögen von 50 Litern
- Bremsscheibe;
- Treibstoffschlauch;
- Klemmen;
- halbes Zollventil;
- Schleifen;
- halber Zoll Ölversorgungsleitung.
Zur Herstellung des Gehäuses wird eine leere Gasflasche verwendet. Es ist notwendig, das Ventil darauf abzuschrauben, danach sollte es über Nacht auf der Straße gelassen werden, um das restliche Gas zu lüften. In den Boden des Produkts wird ein Loch gebohrt. Um Funkenbildung zu vermeiden, muss der Bohrer mit Öl benetzt werden. Durch das Loch wird der Ballon mit Wasser gefüllt, das dann abfließt und das restliche Gas abwäscht.
In den Ballon werden zwei Öffnungen geschnitten. Der obere wird für die Brennkammer verwendet, wo der Wärmetauscher installiert wird. Der untere fungiert als Brenner mit Tablett. Der obere Teil der Kammer ist speziell groß ausgeführt. Bei Bedarf kann es mit anderen Brennstoffoptionen in Form von Brennholz oder gepressten Briketts gefüllt werden.

Ein Gasflaschenofen ist sparsamer und effizienter als andere Materialien
Ferner ist der Boden für das obere Abteil des Geräts aus Blech mit einer Dicke von 4 mm hergestellt. Ein Brenner wird aus einem 200 mm langen Rohrstück hergestellt, wie in der Zeichnung eines Altölofens gezeigt. Um den Umfang des Produkts herum sind viele Löcher angebracht, die für das Eindringen von Luft in den Kraftstoff erforderlich sind.Als nächstes schleifen Sie die Innenseite des Brenners. Dadurch wird die Möglichkeit der Rußansammlung an den Enden und unebenen Oberflächen ausgeschlossen.
Der Ofenbrenner für den Abbau aus einer Gasflasche ist am Boden der oberen Kammer angeschweißt. In Ermangelung von Bergbaureserven kann Holz auf das gebildete Regal gelegt werden.
Erstellen Sie eine Palette zum Ausarbeiten und Installieren eines Schornsteins eines Ölofens mit Ihren eigenen Händen
Gemäß der Ofenzeichnung besteht die Altölwanne aus einer Autobremsscheibe aus Gusseisen, die eine gute Hitzebeständigkeit aufweist. In seinem unteren Teil ist ein Stahlkreis geschweißt, der den Boden bildet. Im oberen Teil ist eine Abdeckung angebracht, durch deren Öffnung Luft in den Ofen eintritt.

Für die Herstellung der Palette wird eine gusseiserne Autobremsscheibe verwendet.
Der nächste Schritt bei der Herstellung eines Altölofens aus einer Gasflasche besteht darin, aus einem 10 cm langen Rohr, das den Brenner und die Pfanne verbindet, eine Kupplung herzustellen. Dank dieses Elements wird es viel einfacher, den Ofen zu warten. Sie können die Pfanne entfernen und den Boden des Brenners reinigen. Um die Ölversorgung sicherzustellen, wird ein Metallrohr in das Loch im Gehäuse eingeführt, das durch Schweißen erfasst wird. Am Rohr ist ein Notventil installiert.
Die Schornsteinstruktur besteht aus einem Rohr mit einem Durchmesser von 100 mm. Eines seiner Enden ist mit dem Loch im zentralen oberen Teil des Körpers verschweißt, und das andere wird auf die Straße gebracht.
Nachdem Sie sich das Video "Ofen zum Trainieren aus einer Gasflasche" angesehen haben, können Sie sich mit der Abfolge der Aktionen bei der Herstellung des Geräts vertraut machen.
Anschluss der Struktur im Bad
Das Design des Ofens umfasst einen Teil des Schornsteins mit vielen Löchern (normalerweise bis zu 50). Dieser Teil der Einheit wird Brenner genannt.In einem solchen Brenner werden Öldämpfe mit Sauerstoff vermischt, der unter Zuglufteinfluss in den Schornstein eintritt. Infolge ihrer Vermischung beginnt der Verbrennungsprozess viel sauberer und intensiver zu werden, wobei eine große Menge Wärme freigesetzt wird.
Die Palette wurde aus einer gusseisernen Autobremsscheibe hergestellt. Gusseisen hat eine gute Hitzebeständigkeit, also habe ich mich entschieden, es zu nehmen.
Aus dieser Scheibe werde ich eine Palette machen
Unten geschweißt den Boden.
Der Stahlkreis ist der Boden
Oben drauf habe ich einen Deckel geschweißt. Darin sieht man das Gegenstück des Brenners und die Öffnung. Luft tritt durch die Öffnung in den Ofen ein. Ich habe es breit gemacht - es ist besser so. Bei einer schmalen Öffnung ist der Luftzug möglicherweise nicht stark genug, um zu verhindern, dass Öl in die Ölwanne gelangt.
Als nächstes machte ich eine Kupplung. Sie verbindet die Pfanne und den Brenner in meinem Herd. Mit einer Kupplung wird die Wartung des Kochers viel einfacher. Bei Bedarf kann ich die Pfanne herausnehmen und den Brenner von unten reinigen.
Als nächstes machte ich eine Kupplung
Die Kupplung wurde aus einem 10-Zentimeter-Rohr hergestellt, das einfach entlang der Längskante geschnitten wurde. Ich habe die Öffnung in der Kupplung nicht geschweißt - das ist nicht nötig.
Der Vorläufer solcher Öfen war der älteren Kerogas-Generation bekannt. Es unterschied sich deutlich von anderen Konstruktionen in seiner Sicherheit und Effizienz. Da die Kraftstoffdämpfe in einer speziellen Kammer verbrannt wurden, erwärmte sich das gesamte Volumen nicht und es entstand keine Entzündungs- und Brandgefahr.
Das Funktionsprinzip des Ofens für Altöl ist ungefähr gleich. Es besteht aus zwei übereinander angeordneten Behältern, zwischen denen sich eine Brennkammer mit Löchern zur Luftansaugung befindet.Der Bergbau wird in den unteren Tank gegossen, dessen Dämpfe aktiv in der mittleren Kammer verbrennen, und die Verbrennungsprodukte, Rauch und andere Substanzen gelangen in die obere Kammer, die mit dem Schornstein verbunden ist, wo sie auf natürliche Weise entfernt werden.
Der Warmwasserboiler befindet sich oben auf dem Ofen. Es ist feststehend, hat Wasserhähne zum Entnehmen von Wasser in der Badewanne und zum Starten des Heizkreislaufs. Das Dampfbad wird von einer Backsteinmauer beheizt, die ins Innere geht. Damit die Wirkung maximal ist, muss der Abstand vom Ofen zum Ziegelkasten eher gering sein, um den Wärmeverlust zu verringern, aber auch ausreichend, damit Luft eindringen kann.
Es gibt eine weitere Möglichkeit, eine Struktur für den Bergbau in Kombination mit einem Ziegelofen herzustellen. Nur der untere Tank wird hergestellt. Die Brennkammer hat die Form eines Knies, das sanft um 90° gebogen ist. An das Ende ist eine vertikale Platte geschweißt, die mit dem inneren (Ofen-) Teil eines herkömmlichen Steinofens kommuniziert. Die bei der Verbrennung des Bergbaus entstehenden heißen Gase gelangen in den Steinofen und erhitzen ihn.
Der weitere Aufbau unterscheidet sich nicht vom üblichen: Ein Wasserkocher wird installiert, ein Heizkreis mit Natur- oder Zwangsumlauf, Absperrventile und so weiter werden angeschlossen. Eine solche kompakte Option ist optimal für diejenigen, die bereits einen fertigen Ofen haben und ihn nur noch für das Brennen des Bergbaus anpassen möchten.
Die beste Variante: Mit einer Warmwasser-Mischstation einen geschlossenen Heizkreislauf schaffen. Der Wärmeträger wird in einem im Inneren des Kessels oder alternativ am Schornstein installierten Wärmetauscher erhitzt.Ein solches System ermöglicht es Ihnen, die Medien vom Wasser für den Haushaltsbedarf abzuschneiden, eine gleichmäßigere Temperatur im System bereitzustellen und die Temperatur in den Räumlichkeiten ziemlich genau einzustellen.
Die Möglichkeit, im teuersten Bereich Geld zu sparen, ist für jeden Hausbesitzer sehr attraktiv, und die Integration aller Elemente in einem einzigen System trägt zu einer bequemeren und effizienteren Verwaltung der Hausheizung bei. Darüber hinaus verursacht der Prozess des Recyclings von Altöl Komplexität, und die Fähigkeit, es mit maximalem Nutzen zu verbrennen, ist die beste Option für die Verarbeitung unnötiger Substanzen.
Sicherheitsbestimmungen
Ein Dickbauchkocher im Betrieb mit Zusatzgeräten erfordert besondere Aufmerksamkeit.
Um die Ausrüstung nicht zu beschädigen und den Raum nicht zu beschädigen, müssen Sie einige Regeln beachten:
- Lassen Sie das Gerät nicht längere Zeit, z. B. über Nacht, unbeaufsichtigt.
- Vor dem Gebrauch ist es besser, den Platz unter dem Ofen zu betonieren.
- Decken Sie die Wände mit nicht brennbaren Materialien ab.
- Stellen Sie das Gerät nicht in einen Luftzug, damit sich das Feuer nicht auf brennbare Materialien ausbreitet. Im Moment der Zündung brennt die Flamme stark und bricht durch die Löcher im Rohr.
- Bis die Öldämpfe zu brennen beginnen, ist es unmöglich, es hinzuzufügen.
Gebrauchsanweisung für den Ofen
Vor dem ersten Test müssen Sie sich vergewissern, dass das Gerät stabil steht. Sequenzierung:
- füllen Sie den unteren Behälter zu 2/3 des Volumens mit Kraftstoff;
- gießen Sie ein wenig Benzin darüber;
- Öffnen Sie die Klappe;
- zünde ein Streichholz an und zünde einen Docht an, eine Zeitung;
- warten Sie, bis das Benzin das Öl erhitzt und die Dämpfe zu brennen beginnen;
- Schließen Sie die Klappe, wenn sich der Raum erwärmt.
Der Ölverbrauch bei geringer Verbrennung beträgt etwa 0,5 Liter pro Stunde. Bei starkem Brennen - 1,5 Liter pro Stunde.
Das Design und Funktionsprinzip des Heizgeräts
Es basiert auf dem Funktionsprinzip von Kerogas. Dies ist ein Heizgerät, das Kerosin und Luftdampf verwendet, um Wärmeenergie zu erzeugen.
Die Heizung besteht aus folgenden Blöcken:
- Unteres Fach. Geschweißt aus 4 mm Stahlblech. Hat auf jeden Fall eine runde Form. Durch den Dämpfer tritt Luft ein, die für den Verbrennungsprozess benötigt wird. Wenn die Tür vollständig geschlossen ist, hört das Brennen allmählich auf.
- Mit einem Loch abdecken.
- Mittleres Fach. Dies ist ein perforiertes Rohr. Für einen ungehinderten Luftstrom sind Löcher erforderlich. Für die Herstellung dieses und anderer Teile wird Metall mit einer Dicke von 5,5 mm und mehr verwendet.
- Oberes Fach.
- Schornstein. Dient zur Entfernung von Verbrennungsprodukten. Rohrlänge - ab 4 Meter optimal - 5-7 Meter. Gefällestrecken bis 45 °C sind erlaubt, was die Effizienz von Heizgeräten erhöht. Aber je größer die Neigung, desto mehr Ruß setzt sich ab. Es sollten keine horizontalen Abschnitte vorhanden sein, der obere Teil ist nur vertikal gerichtet. Für die Herstellung dieses Teils des Ofens werden feuerfeste Materialien verwendet - Zinn, Kupfer, Edelstahl. Der Schornstein ist im oberen Teil des Körpers installiert. Es ist wünschenswert, dass es getrennt ist - dies vereinfacht die Wartung.
Die Teile werden mit einer durchgehenden Naht miteinander verschweißt.

Schema des Ofens
Die Heizleistung wird durch das Gebläsesystem erhöht. Außerdem werden kleine Rohre an den oberen Teil des Rohrs geschweißt, das die obere und untere Kammer verbindet. Dadurch erhöht sich die Wärmeübertragung und die obere Kammer erwärmt sich weniger. Außerdem werden manchmal vertikale Rippen auf das obere Modul geschweißt.
Die Einrichtung funktioniert so. Öl wird in das untere Fach gegossen und mit Hilfe eines Dochts angezündet. Nachdem die obere Schicht kocht, leuchtet Dampf auf.Es entstehen Turbulenzen, die die Drosselklappe ersetzen und die Gase verwirbeln. So treten brennende Dämpfe in das perforierte ein, wo unter Einwirkung von Sauerstoff eine Oxidation stattfindet. In dieser Kammer erreicht die Temperatur 800°C oder mehr. Stickstoff wird aktiver als Sauerstoff, viele toxische Stickstoff- und Kohlenstoffverbindungen treten auf.

Standard- und verbessertes Ofenmodell mit geschweißten Rippen und Rohren
Im oberen Teil werden die Pyrolyserückstände endgültig ausgebrannt. Hier fällt die Temperatur stark ab, Stickstoff verliert seine Aktivität und wird durch Sauerstoff verdrängt. Daher tritt aus dem Heizgerät harmloses Stickstoffgas, Dampf aus, feste Kohlenmonoxidverbindungen setzen sich teilweise im Schornstein ab.




































