- Entwurfsphasen und Inhalte des MKD-Projekts
- Studium der Leistungsbeschreibung und Dokumente für die Website
- Ingenieurvermessung
- Vorbereitung und Begründung von Architektur-, Planungs- und anderen Entscheidungen
- Design von Engineering-Systemen
- Entwicklung von Schutz- und Sicherheitsmaßnahmen
- Erstellung der Projektdokumentation
- Was sind die Anforderungen an eine Baustelle?
- Entwurfsphasen
- Phase #1 - Vorbereitung von Berechnungen und Aufgaben
- Stufe 2 – Auswahl geeigneter Ausrüstung
- Entwurfsphasen
- Welche Dokumente und Umfragen werden benötigt, um einen Designentwurf zu entwickeln
- Klassifizierung von Haushalts- und Industrieklimaanlagen
- Split-System
- Halbindustrielle Klimaanlagen
- Multisplit-Systeme
- Multizonal
- Chiller-Fan-Coil-Systeme
- Designstandards
- Was sind konstruktive und raumplanerische Lösungen
- Vorschriften
- im Klartext
- Regeln für die Auswahl einer Klimaanlage
- Lokale Versorgungslüftung
- Ernennung der Belüftung im Haus
- Schritte zum Systemdesign
- Dokumente und Bildmaterialien, die auf den Ergebnissen der Entwicklung des architektonischen Konzepts basieren
Entwurfsphasen und Inhalte des MKD-Projekts
Das Projekt zum Bau eines MKD besteht aus Pflicht- und Zusatzabschnitten.Der Inhalt des Dokuments und jedes Abschnitts wird durch das Dekret Nr. 87 bestimmt, und die Entwicklung muss GOST R 21.1101-2013 entsprechen.
Studium der Leistungsbeschreibung und Dokumente für die Website
Vor dem Entwurf müssen die Anforderungen des Kunden an das Ergebnis der Arbeit untersucht werden. Sie sind in der Leistungsbeschreibung und im Vertrag mit der Entwicklungsorganisation festgelegt. Die wichtigsten Dokumente der Stadtplanung und Zoneneinteilung, GPZU, Mietvertrag, andere Formulare und Formulare werden ebenfalls untersucht. Gemäß den eingereichten Unterlagen werden die Bedingungen und Verfahren für die Durchführung von Ingenieurvermessungen und anderen Vermessungen festgelegt.
Ingenieurvermessung
Nach dem Bürgerlichen Gesetzbuch der Russischen Föderation sind technische Untersuchungen eine obligatorische Phase bei der Konstruktion eines MKD. Während der Recherche werden folgende Tätigkeiten durchgeführt:
- Vorbereitung der geologischen Grundlage für den zukünftigen Bau, d.h. Untersuchung der Zusammensetzung und Qualität von Böden und Böden, Standorten des Hoch- und Hochbaus und der Verkehrskommunikation;
- Analyse der klimatischen Bedingungen auf der Baustelle;
- Beurteilung des Relief- und Landschaftszustandes, Bestimmung des Bauplatzes, Standorte und Verbringung von Geräten, Materiallagerung;
- Bestimmung des Standorts von Umfassungsbauten (unter Berücksichtigung der Anweisungen der Gemeindebehörden).
Auch in dieser Phase werden Einschränkungen der Bauparameter in Bezug auf Fläche, Anzahl der Stockwerke, Lage der Schutz- und Sanitärzonen untersucht. Alle Ergebnisse der Ingenieurvermessung werden in Form von Dokumenten erstellt, die im Inhalt des Projekts angegeben werden.

Mit moderner Software können Sie bereits in der Entwurfsphase eine Visualisierung des zukünftigen Objekts erstellen
Vorbereitung und Begründung von Architektur-, Planungs- und anderen Entscheidungen
Das Aussehen und Layout des zukünftigen Gebäudes hängt von den Entscheidungen ab, die Architekten und Designer treffen werden. Die Auswahl der Entscheidungen wird von der städtebaulichen Dokumentation der Siedlung, der Anzahl der Stockwerke und der Fläche des zukünftigen Hauses, der Verfügbarkeit der städtischen und sozialen Infrastruktur und anderen Faktoren beeinflusst. Alle architektonischen, raumplanerischen und sonstigen Entscheidungen sind in den jeweiligen Projektabschnitten zu begründen.
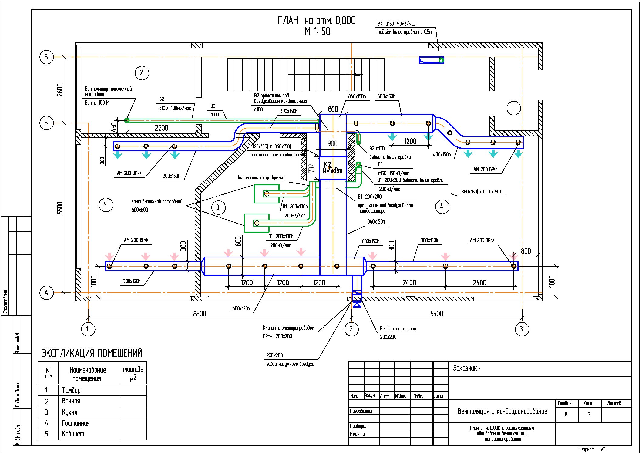
Design von Engineering-Systemen
Für jedes MKD werden technische Systeme entwickelt - Wasserversorgung und Abwasserentsorgung, Energieversorgung, Gasversorgung, Belüftung usw. Die technische Kommunikation muss der Architektur und dem Layout des Gebäudes entsprechen und alle Wohn- und Nebengebäude abdecken. Zulässige Verbindungsindikatoren und Verbrauchsgrenzen sind in den technischen Spezifikationen der Ressourcenversorgungsorganisationen angegeben, sodass der Designer sie bei der Arbeit berücksichtigen muss.

Das MKD-Projekt hat Abschnitte für alle Engineering-Systeme, grafische Diagramme zum Platzieren von Netzwerken
Entwicklung von Schutz- und Sicherheitsmaßnahmen
Eine zwingende Voraussetzung für die Gestaltung von MKD ist die Entwicklung eines Abschnitts mit Brand- und anderen Sicherheitsmaßnahmen. Dazu gehören Fluchtwege und Notleitern, Brandmelde- und Feuerlöschanlagen. Außerdem sollten Sicherheitsmaßnahmen für den Auftragnehmer entwickelt werden, der die Bauarbeiten ausführen wird.
Erstellung der Projektdokumentation
Die obige Liste ist keine vollständige Liste der Entwurfsphasen. Beispielsweise sollten die Abschlussdokumente die Anforderungen an Baumaterialien und -konstruktionen, den Standort von Zäunen und Pläne für die Organisation des Baus enthalten. Alle Abschnitte des Projekts enthalten eine Textbeschreibung und Bildmaterial.Der Textblock zeigt die Entscheidungen und deren Begründung, Erläuterungen und Bauempfehlungen auf. Der grafische Teil umfasst Schemata, Zeichnungen, Tabellen, andere Dokumente und Objekte.
Während des Designprozesses können verschiedene Visualisierungsmethoden zum Einsatz kommen, auch um mit dem Kunden individuelle Details des zukünftigen Objekts zu klären. Nach dem Ausfüllen aller Abschnitte des Projekts gemäß Dekret Nr. 87 muss es vom Kunden genehmigt werden. Außerdem wird die Dokumentation zur Prüfung geschickt, um eine Baugenehmigung zu erhalten.

Inhalt der Projektdokumentation werden Grundrisse sein, die alle Räumlichkeiten zeigen
Was sind die Anforderungen an eine Baustelle?

- Wasserquellen sollten sich in der Nähe der Baustelle befinden. Unter der Bedingung, ein Unternehmen mit Wasserversorgung zu bauen, sollte dessen Wasserfläche eine optimale Länge und Kapazität haben, nicht nur zum Entladen, sondern auch zum Sortieren der verwendeten Rohstoffe.
- Der ausgewählte Standort sollte nicht an den Ort grenzen, an dem Bergbau betrieben wird oder wird. Dieses Prinzip gilt auch für Einsturzzonen im Zusammenhang mit untertägigen Arbeiten und Bereichen, in denen Erdrutsche möglich sind.
- Die Beschaffenheit des Bodens auf der Baustelle muss eine gewisse Baulast zulassen. Dieser Indikator wird bei der Anordnung des Fundaments berücksichtigt, was die Verwendung eines solchen Indikators als Trägheitslast (Verwendung von Vibrationsmaschinen, Hämmern, Sägewerken) impliziert.
- Das Relief sollte so bequem wie möglich sein, ebenso wie das angrenzende Gebiet. Dadurch wird die Aushubmenge reduziert und das Layout wird minimal sein. Der für den Bau ausgewählte Standort sollte nicht durch Hochwasser überflutet werden.In diesem Fall sollte der Grundwasserspiegel niedrig sein.
- Die Konfiguration und Abmessungen der Baustelle müssen den optimalen Standort des Gebäudes auf der Grundlage des genehmigten Produktionsprozesses gewährleisten. Dabei werden alle Anforderungen und Normen bezüglich der möglichen Erweiterung und des späteren Betriebs des Bauwerks berücksichtigt.
Entwurfsphasen
Die Erstellung eines Plans für die erforderlichen Arbeiten erfolgt in zwei aufeinanderfolgenden Phasen, einschließlich der Erstellung aller erforderlichen Berechnungen, Schätzungen, technischen Spezifikationen für Spezialisten in verwandten Bereichen und der Auswahl einer geeigneten Modellreihe von Geräten.
Phase #1 - Vorbereitung von Berechnungen und Aufgaben
Die Vorbereitung besteht darin, sich mit dem Gebäude, seiner Lage, den Konstruktionsmerkmalen und anderen Faktoren vertraut zu machen.
Spezialisten erstellen eine Machbarkeitsstudie, auf deren Grundlage die Art der Klimaanlage ungefähr ausgewählt wird. Letzteres wird vereinfacht beschrieben.
Das vereinfachte Diagramm zeigt die wichtigsten Teile des Klimaanlagensystems, der Kältemittelverteilereinheiten und der Hauptklimasteuereinheiten
Der Master bietet potenziell effektive Geräte an, die den Anforderungen der Räumlichkeiten in Bezug auf grundlegende Eigenschaften entsprechen:
- Energie;
- Kälte-, Wärme- und Luftleistung.
Danach wird eine Schätzung der zukünftigen Arbeit erstellt. Wenn das Projekt der Machbarkeitsstudie den Eigentümer des Gebäudes oder der Wohnung überzeugt, geht die Vorbereitungsphase in die Arbeitsphase über.
Stufe 2 – Auswahl geeigneter Ausrüstung
In diesem Stadium Design basiert auf genauen Berechnungen, die die interne und externe Wärmebelastung, die thermischen Eigenschaften des Objekts berücksichtigen. Die Berechnungen werden für jeden Raum einzeln durchgeführt, wonach die überschüssige Wärme in jeder Zone genau bekannt ist. Anhand dieser Daten wird die zur Kompensation thermischer Belastungen notwendige Ausstattung ausgewählt.
Nach der Auswahl der Ausrüstung beginnt die Planung der Installationsorte für Klimaanlagen, ein Diagramm der Verteilung der Luftkanäle wird bereitgestellt, ein technischer Arbeitsplan wird für das Installationsteam, Elektriker, erstellt.
Alle vorbereiteten Materialien werden an den Kunden und den Lieferanten der Klimatechnik übergeben. Nach der Installation ist es wünschenswert, die Inbetriebnahme durchzuführen, um den Betrieb des Geräts einzurichten.
Entwurfsphasen
Die Konstruktion von Klimaanlagen umfasst zwei Hauptphasen:
- Entwurf einer Machbarkeitsstudie. In dieser Phase wird der Standort von Klimaanlagen bestimmt, z. B. deren Auswahl, Berechnungen von Wärme- und Luftindikatoren und anderen wichtigen Parametern. Basierend auf der Gesamtheit der Daten wird ein Primärschema entwickelt und mit dem Kunden abgestimmt.
- genehmigung Nach dem Kunden des primären Schemas beginnt die Arbeitsplanung des Projekts, dessen Prozess darin besteht, die Raumaufteilung, die thermischen Eigenschaften des Raums selbst und die technologische Aufgabe zu bearbeiten. Für jeden Raum des Raums wird eine direkte Luftaustauschberechnung durchgeführt, die Indikatoren für den erforderlichen Druck im Netzwerk und die Wärmeableitung werden angezeigt. Alle notwendigen Pläne für zukünftige Standorte von Installationsausrüstung und Netzwerkverkabelung werden erstellt.Die endgültige Auswahl der Klimatechnik und die Erstellung der Spezifikationen dafür und des gesamten Prozesses in den erforderlichen Materialien werden durchgeführt.
Welche Dokumente und Umfragen werden benötigt, um einen Designentwurf zu entwickeln
Die Entwicklung von Skizzen und deren Beschreibungen sollte auf den Ausgangsdaten für den Standort, für das bestehende Gebäude basieren. Die Liste der Dokumente, die bei der Erstellung eines Entwurfs verwendet werden, umfasst:
- Titeldokumente für die Website;
- Pläne und Pläne des Grundstücks, auf dem Bauarbeiten durchgeführt werden;
- topografische und geodätische Pläne, Diagramme, die die Merkmale des Geländereliefs, Koordinaten und Höhen aufzeichnen;
- Dokumente und Bildmaterial zu den umliegenden Gebäuden;
- Ergebnisse von Ingenieurvermessungen am Standort.
Befinden sich auf dem Gelände bereits Objekte und Netze, auch unterirdische, werden diese bei der Entwicklung von Skizzen ebenfalls berücksichtigt. Erste Informationen über den Standort und die Struktur werden im Zuge von Erhebungen, Erhebungen, Begehungen eingeholt.
Zur Ausarbeitung und Begründung von Lösungsentwürfen werden folgende Angaben benötigt:
- zu den zulässigen Bauparametern auf diesem Grundstück (diese Informationen finden sich in GPZU, städtebaulichen Unterlagen, technischen Vorschriften);
- zu architektonischen und künstlerischen Anforderungen an das Erscheinungsbild und die Fassaden des Gebäudes (diese Anforderungen werden für verschiedene Stadtteile, Quartiere und Straßen unterschiedlich sein);
- zu bestehenden Verboten und Beschränkungen auf dem Gelände (dies wirkt sich auf die Standortwahl des Objekts vor Ort aus).
Topographische Aufnahmen und geodätische Aufnahmen werden im Zuge der Vermessung des Standorts durchgeführt.Anhand ihrer Ergebnisse können Sie alle Merkmale der Bodenstruktur und des Bodens, des Geländes und der genauen Standorte unterirdischer Anlagen ermitteln. Dieselben Informationen werden in späteren Entwurfsphasen benötigt, wenn die Auswahl und Begründung von Entscheidungen über bestimmte Objekte getroffen wird.

Bei der Erstellung von Skizzen können Sie gleichzeitig ein Landschaftsgestaltungsprojekt für den Standort abschließen
Klassifizierung von Haushalts- und Industrieklimaanlagen
Split-System
Die einfachste Klimaanlage der Einstiegsklasse besteht aus Außen- und Innengeräten. Dies sind die gängigsten Haushaltsklimaanlagen, die sich hervorragend für Wohnungen eignen, aber komplexere Systeme werden für große Einrichtungen verwendet. Die Haushaltsserienleistung übersteigt normalerweise 7 kW Kälteleistung nicht.
Halbindustrielle Klimaanlagen
Leistungsstärkere Klimaanlagen dieser Linie gelten bereits als halbindustriell, da sie für Wohnungen bereits zu groß sind, eignen sie sich für kleine Geschäfte, Büros, kleine Industrien und andere Räumlichkeiten, in denen Herstellbarkeit und Aussehen nicht sehr wichtig sind. Halbindustrielle Klimaanlagen überschreiten oft nicht eine Leistung von 25 kW, aber es gibt noch mehr.
Multisplit-Systeme
Die nächste Stufe sind bereits mehrere Klimaanlagen zu einem Außengerät an die Sie bis zu 5 Innengeräte mit einer Gesamtleistung von bis zu 9kW anschließen können. Diese Technik ermöglicht es einer Außeneinheit, den Kältebedarf der gesamten Wohnung oder eines kleinen Büros oder Ladens zu decken.
Darauf folgen Multisysteme auf höherem Niveau, mit denen Sie bis zu 9 Innengeräte an ein Außengerät anschließen können. Der Unterschied zu diesem System besteht darin, dass das System verzweigt ist. An die Außeneinheit sind bereits Blockverteiler angeschlossen Anschluss von Innengeräten. Eine wunderbare Lösung, sowohl für Ferienhäuser als auch für große Wohnungen, für Geschäfte und Büros, wie Macht ist bereits bis zu 16kw
Multizonal
Die nächste technologische Stufe sind VRV / VRF-Systeme, die Anzahl der Innengeräte kann bis zu 40 erreichen, für ein System, dessen Leistung 50-60kW betragen kann, können solche Systeme je nach Hersteller bis zu 3-4x kombiniert werden, mit einer Gesamtleistung von 180-200 kW und einer Anzahl von Innenblöcken von bis zu 120 oder mehr. Das System eignet sich hervorragend für große Geschäfte, Hotels, große Bürogebäude und verschiedene andere Gebäude. Das System ist sehr hochtechnologisch, es kann an ein Belüftungssystem angeschlossen werden, es kann zur Raumheizung verwendet werden, es kann an Warmwasserheizgeräte angeschlossen werden, so dass viele Funktionen von einem Gerät bereitgestellt werden. Ein weiteres Merkmal ist, dass das System Wärme zurückgewinnen und innerhalb des Gebäudes umverteilen kann. Beispielsweise erzeugen Serverräume immer Wärme, die gesammelt und in Räume mit Heizbedarf transportiert werden kann, in der Übergangszeit, wenn die Sonne einen Teil des Gebäudes beleuchtet, es darin heiß wird und es auf der unbeleuchteten Seite kalt ist , und das System kann den Solarteil kühlen und Wärme auf den Schatten übertragen. Dies ist eine völlig neue Stufe der Energieeffizienz.
Chiller-Fan-Coil-Systeme
Alle oben genannten Systeme sind Direktverdampfungssysteme
bedeutet, dass Freon in jedem Innengerät verdampft und die Freon-Zirkulation vom Kompressor des Außengeräts bereitgestellt wird. In dieser Hinsicht gibt es eine Reihe von Einschränkungen hinsichtlich der Länge der Rohrleitungen solcher Systeme.Denn je größer die Strecke, desto stärker wird der Kompressor benötigt, was den Preis und die Betriebskosten erhöht und die Energieeffizienz der Anlage senkt. Das Wesen indirekter Kühlsysteme besteht darin, dass die Kältemaschine (Kältemaschine) das Wasser kühlt, es jedoch bereits in eine beliebige Entfernung transportiert werden kann und dies keine Erhöhung der Kompressorleistung erfordert, es reicht aus, eine leistungsstärkere Pumpe zu installieren, und der Energieverbrauch von Pumpe und Kompressor sind inkommensurabel. Die Modellpalette der Kältemaschinen ist sehr breit und beginnt bei 6 kW und endet bei Maschinen über 2 MW.
Designstandards
Es wird nicht funktionieren, genau zu überlegen, wie Lüftungsanlagenprojekte in allen möglichen Fällen vorbereitet werden.
Daher ist es wichtig, sich auf gemeinsame charakteristische Punkte zu konzentrieren. Die Grundsätze sind in den folgenden drei Verordnungen verankert:
- SNiP;
- hygienische und epidemiologische Standards;
- SanPiN.
Wichtig: Die Lüftungssysteme von Lagerkomplexen und Fabrikhallen unterliegen nicht denselben Bau- und Hygienevorschriften, die für die Gestaltung von Wohngebäuden erforderlich sind. Es ist strengstens verboten, diese Vorschriften zu verwechseln
Jedes Projekt muss die folgenden Anforderungen erfüllen:
- Luftreinheit und Mikroklima;
- Langzeitbetrieb von Lüftungs- und Klimaanlagen;
- Vereinfachung der Reparatur dieser Systeme;
- begrenzte Lärm- und Vibrationsaktivität (auch für Notbeatmung);
- Sicherheit in Brand-, Sanitär- und Explosionsschutz.
Es ist verboten, in den Projekten all jene Materialien und Strukturen sowie deren Kombinationen vorzusehen, die für diesen Gebäudetyp oder für einen bestimmten Bereich nicht zulässig sind.Alle zu zertifizierenden Materialien und Teile werden in den Projekten nur zusammen mit Informationen zu den Zertifikaten erwähnt. Die Mindestluftzufuhr pro Person in Räumen und Räumlichkeiten mit natürlicher Luftzufuhr sollte 30 Kubikmeter betragen. m. Für Bereiche, die aus irgendwelchen Gründen nicht durch Fenster belüftet werden, sollte dieser Wert mindestens doppelt so hoch sein.
Was sind konstruktive und raumplanerische Lösungen
Die Grundlage eines jeden Investitionsobjekts ist die Gesamtheit seiner tragenden und nicht tragenden Konstruktionen - Fundament, Decken, Wände, Trennwände, Treppenläufe und Käfige, unterirdische Elemente. Die Anforderungen an ihre Platzierung im Gesamtvolumen des Gebäudes müssen in der Projektdokumentation berücksichtigt werden. Dazu wird ein spezieller Abschnitt des Projekts „Konstruktive und raumplanerische Lösungen“ ausgefüllt.
Der Satz von Designlösungen umfasst alle horizontalen, vertikalen und geneigten Strukturen des Gebäudes, die seine Stabilität und Festigkeit gewährleisten. Raumplanungslösungen sorgen für die Organisation des Innenvolumens des Gebäudes, seiner Haupt- und Nebenräume.
Vorschriften
Die grundlegenden Regulierungsdokumente für die Entwicklung der Projektdokumentation sind das Zivilgesetzbuch der Russischen Föderation und das Dekret der Regierung der Russischen Föderation Nr. 87 (Download). Lesen Sie hier mehr. Diese Gesetze sehen die obligatorische Einbeziehung des Abschnitts „Konstruktive und raumplanerische Lösungen“ in das Projekt vor. Dekret Nr. 87 (Download) enthält eine Liste von Informationen, die in den Text- und Grafikteilen dieses Abschnitts angegeben werden müssen. Darüber hinaus gibt es eine allgemeine technische Vorschrift zur Sicherheit von Gebäuden und Bauwerken.Es ist durch das Bundesgesetz Nr. 384 (Download) genehmigt und sollte bei der Entwicklung jeglicher Art von Projektdokumentation verwendet werden.
Außerdem müssen bei der Planung die Anforderungen des Joint Ventures SNiP berücksichtigt werden. GOST und NPB, einschließlich:
- SP 118.13330.2012 für öffentliche Gebäude;
- SP 54.13330.2016 für Mehrfamilienhäuser;
- SP 56.13330.2011 für Industriebauten;
- SP 31-107-2004 zur Gestaltung architektonischer und konstruktiver Lösungen (Download);
- andere Vorschriften, abhängig von den funktionellen Eigenschaften und der Art des Gegenstands.
Bauliche und raumplanerische Lösungen müssen den Anforderungen der Brandschutz-, Sanitär- und Hygiene-, mechanischen und sonstigen Sicherheit entsprechen und die Festigkeit und Stabilität des Gebäudes gewährleisten. Um diese Kriterien für den Bau des Gebäudes und die Rekonstruktion zu überprüfen, wird das Projekt einer Prüfung unterzogen, wonach es zur Erteilung einer Baugenehmigung übergeben wird.
im Klartext
Der Zweck des Entwurfs von baulichen und raumplanerischen Lösungen besteht darin, alle tragenden Strukturen und Elemente der Anlage, eine Liste der anstehenden Arbeiten und Anforderungen an die Eigenschaften von Baumaterialien zu beschreiben. In diesem Abschnitt muss der Designer Folgendes angeben:
- Beschaffenheit des Bodens, Landschaft, Grundwasserstände am Standort, klimatische Bedingungen für die Errichtung des Betriebs der Anlage;
- Konstruktionsmerkmale des Gebäudes und aller seiner Räumlichkeiten mit den erforderlichen Lastberechnungen und Reflexionen zu räumlichen Diagrammen;
- Anforderungen an Festigkeit, Stabilität, räumliche Unveränderlichkeit des Objekts und seiner einzelnen Elemente;
- Merkmale des Baus unterirdischer Gebäudeteile;
- die Besonderheiten der Planung und des Betriebs von Industrieanlagen verschiedener Art;
- Anforderungen an die Bereitstellung von Wärmeschutz, Reduzierung von Geräuschpegeln, Vibrationen und anderen negativen Auswirkungen, Wasserdichtigkeit und andere regulatorische Kriterien;
- Anforderungen an Brandschutz und Energieeinsparung;
- Gestaltungsmerkmale von Böden, Decken, Innenausstattung im Gebäude.
Die Beschreibung all dieser Nuancen wird von der Erstellung von Diagrammen, Zeichnungen, Plänen und Erläuterungen begleitet. Basierend auf den Design- und Raumplanungslösungen wird eine Arbeitsdokumentation für den Auftragnehmer erstellt.
Regeln für die Auswahl einer Klimaanlage
Bei der Auswahl einer Klimaanlage werden alle möglichen Optionen berücksichtigt. Es wird empfohlen, sich auf drei Varianten des Systems zu konzentrieren. Insbesondere ist eine umfassende Problemanalyse unter Berücksichtigung unterschiedlicher Möglichkeiten und Anforderungen an ein bestimmtes System erforderlich.
Auf folgende Anforderungen ist besonders zu achten:
- Sanitär. In diesem Fall müssen die festgelegten Temperatur- und Feuchtigkeitsparameter eingehalten werden. Präzise Feuchtigkeitsregelung ist der Hauptgrund für die Erhöhung der Kosten der Klimaanlage. Das Luftmassentransportsystem kann natürlich oder erzwungen sein. Zum Ablassen der Luft kann ein Absaugsystem oder eine Pumpausrüstung verwendet werden.
- Architektur und Konstruktion. Klimaanlagen können mit verschiedenen Methoden installiert werden. Am beliebtesten ist die Straßen- oder Fassadeninstallation einer Außeneinheit mit Anschluss einer Inneneinheit im Gebäude. Eine alternative Option ist ein Decken-Split-System.Wenn die Struktur große Abmessungen hat, ist es ratsam, eine zentrale Klimaanlage im Dachteil des Gebäudes zu installieren. Außerdem sind bauliche Anforderungen mit der Möglichkeit verbunden, Luftkanäle und Kommunikationselemente zu installieren.
- Feuerfest. Diese Anforderungen werden in mehrere Kategorien eingeteilt. Gewöhnliche Räumlichkeiten gehören zur Kategorie "D", explosiv und feuergefährlich - zur Kategorie "A" und "B" und feuergefährlich - zur Kategorie "C". Die Organisation verschiedener Veranstaltungen erfolgt unter Berücksichtigung der einen oder anderen Kategorie von Räumlichkeiten.
- Betriebsbereit. Es ist notwendig, eine Systemsteuerungsmethode zu wählen: zentralisiert mittels einer Fernbedienung oder autonom mit manueller Änderung der Betriebsparameter.
Lokale Versorgungslüftung
Die lokale Versorgungslüftung umfasst Luftduschen (konzentrierter Luftstrom mit erhöhter Geschwindigkeit). Sie müssen Dauerarbeitsplätze mit sauberer Luft versorgen, die Umgebungslufttemperatur in ihrem Bereich senken und Arbeiter anblasen, die intensiver Wärmestrahlung ausgesetzt sind.
Die Belüftung mit lokaler Versorgung umfasst Luftoasen - Bereiche von Räumlichkeiten, die durch bewegliche Trennwände mit einer Höhe von 2 bis 2,5 m vom Rest der Räumlichkeiten eingezäunt sind und in die Luft mit niedriger Temperatur eingeblasen wird. Lokale Zuluft wird auch in Form von Luftschleieranlagen (an Toren, Öfen usw.) eingesetzt, die gewissermaßen Luftabschottungen bilden oder die Richtung von Luftströmungen ändern. Die lokale Beatmung ist kostengünstiger als die allgemeine Beatmung.Wenn in Industriegebäuden Gefahren (Gase, Feuchtigkeit usw.) freigesetzt werden, wird normalerweise ein gemischtes Lüftungssystem verwendet - üblich, um Gefahren im gesamten Volumen des Gebäudes und lokal (lokale Absaugung und Zuführung) an den Servicearbeitsplätzen zu beseitigen.
Ernennung der Belüftung im Haus
In Innenräumen atmet eine Person eine große Menge Luft ein. Wenn das Lüftungssystem nicht richtig organisiert ist, kann die Luft stagnieren - der Sauerstoffgehalt nimmt ab, es wird feucht und staubig. All dies wirkt sich negativ auf das allgemeine Wohlbefinden einer Person aus und kann bei Menschen mit Atemwegserkrankungen und Allergien das Auftreten von Krankheiten hervorrufen.
Um einen Luftstau zu vermeiden, ist es notwendig, den Raum regelmäßig zu lüften, indem Fenster und Türen zur Straße geöffnet werden. Es sind diese Maßnahmen, die den Zufluss von Frischluft sicherstellen, und ihr Abfluss erfolgt über die allgemeinen Wohnungslüftungssysteme, die in jedem modernen Gebäude obligatorisch organisiert sind.

Moderne doppelt verglaste Fenster und Türrahmen bieten jedoch keinen ausreichenden Luftstrom. Es ist bequem, sie im Sommer zu öffnen, aber es ist in unserem Klima eher problematisch, sie im Winter zu verwenden. Darüber hinaus ist die Ökologie einiger Gebiete auch ziemlich schädlich für die menschliche Gesundheit, und es gibt keine Filtersysteme für eine solche natürliche Belüftung.
Eine zentrale Lüftungs- und Klimaanlage soll das Gebäude gut belüften.
Schritte zum Systemdesign
Die Planung von Klimaanlagen in industriellen und öffentlichen Einrichtungen sollte qualifizierten Spezialisten anvertraut werden. Die Effizienz und Produktivität der zukünftigen Installation hängt von der richtigen Auslegung des Projekts ab.
In der Anfangsphase studieren Designer das Objekt. Stellen Sie sicher, dass Sie einen Konditionierungsplan erstellen.

Dabei werden innere und äußere thermische Effekte berücksichtigt, nämlich:
- das Vorhandensein von erhitzten Flüssigkeiten, Substanzen oder Materialien im Raum;
- Wärmeeintrag von der Straße während der warmen Jahreszeit;
- die Freisetzung von Wärmeenergie durch Arbeitsgeräte in Industriegebäuden;
- Wärme, die eine Person im Laufe des Lebens abgibt;
- Sonneneinstrahlung;
- Erhitzen der Luft mit Heizgeräten und Lampen.
Alles im Sommer thermische Energiequellen müssen neutralisiert und im Winter bei der Planung der Belastung von Klimaanlagen berücksichtigt werden.
Der Designprozess gliedert sich in mehrere Phasen:
- Bestimmung des normalen Luftwechsels in jedem Raum.
- Identifizierung von Wärmeenergiequellen.
- Erstellung einer Liste zusätzlicher Anforderungen an die Klimaanlage.
- Auswahl des Projekts unter Berücksichtigung der Betriebsbedingungen des Gebäudes.
- Mehrere Optionen zur wirtschaftlichen Begründung von Designentscheidungen.
- Abgleich des Projekts mit den Ausgangsanforderungen.
- Detaillierte Projektentwicklung.
- Koordination der Projektdokumentation.
Nach Absprache mit dem Kunden wird das Projekt an die Installateure übergeben, die die Klimaanlagen installieren und anschließen.
Dokumente und Bildmaterialien, die auf den Ergebnissen der Entwicklung des architektonischen Konzepts basieren
Das architektonische Konzept ist ein Satz aus folgenden Textmaterialien:
- Beschreibung und Begründung des Aussehens des Gebäudes, Merkmale des Grundrisses und der funktionalen Organisation, Parameter und Eigenschaften des Objekts;
- Beschreibung der Eigenschaften des Baugrundstücks;
- Beschreibung der Fassade und Farbgebung;
- Beschreibung und Begründung der Außenbeleuchtung des Objekts und Standorts;
- Beschreibung der Website-Verbesserungselemente;
- technische und wirtschaftliche Indikatoren, Berechnungen der technischen Belastungen.
Ebenso wichtig ist der grafische Teil, der das Allgemeine enthält Landplan, Skizzen und Anordnung von Fassaden entlang der Straßen, Grundrisse, Schnitte. Die genaue Liste der Text- und Grafikmaterialien wird durch die TOR bestimmt, die Merkmale des gestalteten Objekts.

Der Dokumentensatz umfasst Skizzen und Zeichnungen für das Erscheinungsbild des zukünftigen Gebäudes.





























