- Das Prinzip der angewandten biologischen Behandlung
- Design und Hauptmerkmale
- Die Aufstellung
- Betriebsschema der Anlage
- Das Funktionsprinzip der Flotenk-Klärgrube
- Wie installiere ich eine Flotenk-Klärgrube?
- Merkmale der Station Flotenk STA
- Merkmale der Station Flotenk BioPurit
- Kosten (Preis) einer Klärgrube Flotenk
- Modellprogramm: Technische Merkmale
- Flotenk STA 1,5 m³
- Flotenk STA ab 2 m³
- Flotenk STA JA
- Welche Modelle bietet der Hersteller an?
- Triton-Mini
- Klärgrube Triton-Micro
- Klärgrube Triton-N
- Klärgrube Triton-T
- Klärgrube Triton-ED
- Gerät und Funktionsprinzip
- Überblick über das Sortiment
- Wie installiere ich eine Flotenk-Klärgrube?
- Merkmale der Station Flotenk STA
- Merkmale der Station Flotenk BioPurit
- Fazit
Das Prinzip der angewandten biologischen Behandlung
Die Reinigung des häuslichen Abwassers erfolgt schrittweise, da es nacheinander alle Abteilungen der Klärgrube durchläuft.
Verschmutztes Wasser fließt durch die Schwerkraft durch das Abwasserrohr vom Haus zum ersten Abschnitt des Bauwerks. Um Verstopfungen zu vermeiden, wird das Rohr so eingeführt, dass der Ablauf unterhalb des Niveaus der Abflüsse liegt. Die meisten Verunreinigungen werden in diesem Fach zurückgehalten: Fette und Filme schwimmen an der Oberfläche, schwere Partikel setzen sich am Boden ab.

Der Reinigungstank ist ausgestattet an die Oberfläche kommen Rohre - eines von jedem Abschnitt. Sie werden zum Pumpen von festem Schlamm benötigt
Sauerstoffmangel ist die Ursache des anaeroben Prozesses, der bedingt in zwei Stadien unterteilt werden kann:
- Saure Gärung. Alle Substanzen, einschließlich Fette, zersetzen sich, bis sie sich in niedere Fettsäuren (Buttersäure, Ameisensäure, Essigsäure), Alkohole, Schwefelwasserstoff, Kohlendioxid verwandeln.
- Methangärung. Alkohole und Fettsäuren zersetzen sich schließlich unter Bildung von Wasserstoff, Kohlendioxid, Methan.
Nach Überwindung des Blockers gelangen die Abwässer zur weiteren Beruhigung in den zweiten Abschnitt. Überläufe befinden sich über dem Niveau der Sedimentmassen und unter den auf der Oberfläche schwimmenden Fettfilmen. In diesem Kompartiment wird zusätzlich zur mechanischen, anaeroben Verarbeitung weitergearbeitet.

Die Klärgrube befindet sich nicht weit vom Haus entfernt und berücksichtigt die Tatsache, dass ein separates Grundstück von einem ausgestatteten Filterfeld belegt wird
Im dritten Abschnitt bilden organische Schwebstoffe ein Sediment, und durch ein Rohr gelangt nahezu gereinigtes Wasser zur abschließenden Nachbehandlung in das Filterfeld.
Bei der Installation eines Filtertunnels (Entwässerungsfeld) muss der Abstand zu einigen Objekten berücksichtigt werden, z. B. muss Grundwasser sein auf Mindestabstand 1m
Design und Hauptmerkmale
Das Material für die Herstellung des Körpers der Klärgrube Flotenk STA ist strapazierfähiges Fiberglas. Die Gehäuse der Geräte werden unter strenger Qualitätskontrolle gefertigt, daher besteht kein Zweifel an ihrer Dichtheit und Zuverlässigkeit.
Äußerlich ähnelt der Körper der Klärgrube Flotenk STA einem gewöhnlichen Tank, dh es handelt sich um einen horizontalen zylindrischen Behälter. Innen Container ist in Partitionen unterteilt drei Abschnitte. Tanks werden in unterschiedlichen Volumina und dementsprechend unterschiedlichen Kapazitäten hergestellt.
Die Aufstellung
Heute werden 7 Varianten der Klärgrube Flotenk STA produziert.Das jüngste Modell der Reihe kann 500 Liter kontaminierte Flüssigkeit pro Tag verarbeiten, und die Gesamtkapazität beträgt 1,5 Kubikmeter. Das leistungsstärkste Modell der Serie kann 3,3 Kubikmeter Kanalisation pro Tag reinigen, sein Gesamtvolumen beträgt 10.000 Liter.
Betriebsschema der Anlage
In der Klärgrube Flotenk STA befinden sich drei isolierte Behälter. Bei der Behandlung durchströmt das Abwasser nacheinander alle drei Abschnitte der Kläranlage:
- Der Empfangsteil der Flotenk STA-Einheit erfüllt die Funktionen eines Sumpfes, in dem die größten Verunreinigungen, die nicht im Wasser gelöst sind, abgelagert werden;
- Das Sediment am Boden des Sumpfes wird einer anaeroben (Durchgang ohne Luftzugang) Gärung unterzogen. Herkömmlicherweise wird dieses ziemlich komplizierte Verfahren in zwei Stufen unterteilt. In der ersten Stufe wird die sogenannte Säuregärung durchgeführt, bei der sich organische Stoffe unter Bildung von Fettsäuren, Alkoholen, Schwefelwasserstoff und Kohlendioxid zersetzen. Anschließend findet die Methangärung statt, bei der Fettsäuren und Alkohole zu Methan, Wasser und Kohlendioxid zerfallen;
- Nach dem Absetzen gelangt das Wasser durch die Überlaufvorrichtung in den zweiten Abschnitt, wo der Vorgang wiederholt wird. Die Abwässer werden wieder abgesetzt, Partikel werden vom Wasser getrennt, die im ersten Abschnitt keine Zeit hatten, sich abzusetzen. Der Schlamm wird auch einer anaeroben Behandlung unterzogen;
- Bereits geklärtes Wasser tritt in den dritten Abschnitt ein, beim Absetzen werden kleine Partikel aus den Abwässern freigesetzt, die in Form von Suspensionen vorliegen;
- Anschließend wird das Wasser aus der Anlage entnommen und den Filterstellen oder Filterbrunnen zugeführt.
Das Funktionsprinzip der Flotenk-Klärgrube
Die Kläranlage Flotenk ist eine konventionelle Dreikammer-Klärgrube, die das Abwasser durch anaerobe Zersetzung von Feststoffpartikeln (Biomasse) und Schwerkraftklärung (Absetzen) der Flüssigkeit reinigt.
Daher besteht der Arbeitsbereich von Flotenk-Systemen aus folgenden Zonen:

Klärgrube für ein Landhaus Flotenk
- Vorklärkammer, an deren Boden sich die schwersten Partikel absetzen.
- Nachklärkammern, in denen kleinere Partikel zurückgehalten werden.
- Kammerklärer von Abwässern, die bereits praktisch frei von Feststoffpartikeln sind.
Der Abwasserfluss zwischen den Kammern wird durch die Integration von Überlaufsperren mit breiten Kanälen in den Arbeitsbereich realisiert. Das heißt, die Abflüsse treten erst in die zweite Kammer ein, nachdem die erste gefüllt ist. Usw. Und aus der dritten Kammer fließt das „geklärte“ Wasser in die Filterfelder, wo eine zusätzliche Behandlung stattfindet, bevor es in den Boden geleitet wird.
In allen drei Kammern findet eine anaerobe Zersetzung statt, bei der feste Partikel in Strömungen zerstört werden. Darüber hinaus findet im ersten Abteil eine saure Gärung statt, bei der organisches Material in Fettsäuren, Alkohole und Schwefelwasserstoff zersetzt wird. Im zweiten und dritten Kompartiment findet wiederum eine Methanfermentation statt, bei der Fettsäuren, Alkohole und Schwefelwasserstoff zu Wasserstoff, Kohlendioxid und Methan zersetzt werden.
Eine zusätzliche Behandlung im Filterfeld erfolgt durch die Passage des Abwassers durch Sand- und Kiesfilter und den anschließenden Kontakt mit im Boden enthaltenen Bakterien. Und bei voller Beachtung der Bautechnik der Kläranlage gelangt fast reines Wasser in den Boden.
Wie installiere ich eine Flotenk-Klärgrube?
1. Stellen Sie vor der Installation der Station sicher, dass Sie sie nicht in der Nähe des Hauses, von Brunnen und Trinkwasserquellen aufstellen.
2. Wenn Sie alle erforderlichen Hygienestandards berücksichtigt haben, besteht der erste Schritt bei der Installation der Installation in der Vorbereitung der Grube. Das ausgehobene Loch sollte der Größe der Station entsprechen. Legen Sie ein Sandkissen auf den Boden der Grube. Um der Struktur zusätzliche Festigkeit zu verleihen, installieren Sie außerdem eine Betonplatte und befestigen Sie Ankerringe am Boden der Platte, die in ein Edelstahlkabel eingefädelt werden müssen. Das Kabel wird verwendet, um der Installation zusätzliche Unbeweglichkeit zu verleihen.

3. Nachdem Sie ein Loch gegraben haben, bringen Sie alle erforderlichen Abwasserrohre dorthin, die zuerst gereinigt werden müssen. Achten Sie darauf, die Rohre in einem gewissen Winkel zu verlegen, damit das Abwasser von alleine abfließt. Rohre sollten auch isoliert werden. Fixieren Sie den Lüfter-Riser.
4. Bohren Sie mit Diamantbohrern spezielle Löcher in die Wände der Grube, in die Abwasserrohre verlegt werden.
5. Laden Sie die Station in die Grube, installieren Sie die oberen Hälse. Achten Sie darauf, das System mit sauberem Wasser zu füllen, bevor Sie die Erde erneut auslegen. Filterausrüstung und Infiltrationstunnel installieren.

Es gibt drei Arten von Klärgruben:
- Flotationsbehälter STA;
- Flotationsbehälter BioPurit;
- SeptiX Schwimmertank.
Merkmale der Station Flotenk STA
Das Material, aus dem das Gerät besteht, ist Glasfaser. Da alle Teile in großen Mengen in Fabriken hergestellt werden, besteht kein Zweifel an ihrer Qualität, Dichtigkeit und Festigkeit. Diese Station hat eine zylindrische Form, die im Inneren in eine bestimmte Anzahl von Abschnitten unterteilt ist. Je größer das Volumen der Anlage, desto höher die Produktivität. Die Station muss bis zu dreimal im Jahr gereinigt werden.

ModellnameVolumen, lProduktivität, l/TagDurchmesser, mmLänge, mm
| Flotationsbehälter STA 1.5 | 1500 | 500 | 1000 | 2100 |
| Flotationsbehälter STA 2 | 2000 | 700 | 1000 | 2700 |
| Flotationsbehälter STA 3 | 3000 | 1000 | 1200 | 2900 |
| Flotationsbehälter STA 4 | 4000 | 1300 | 1200 | 3800 |
| Flotationsbehälter STA 5 | 5000 | 1700 | 1600 | 2700 |
| Flotationsbehälter STA 6 | 6000 | 2000 | 1600 | 3200 |
| Flotationsbehälter STA 10 | 10000 | 3300 | 1600 | 5200 |
Merkmale der Station Flotenk BioPurit
Die Station besteht aus vier Abschnitten und muss einmal im Jahr gewartet werden. Die Modellnummer im Namen entspricht der Anzahl der Personen, die dieses Gerät verwenden können (spezifisches Modell).
ModellnameVolumen, lProduktivität, l/TagDurchmesser, mmHöhe, mm
| Flotationsbehälter BioPurit 2 | 200 | 0,4 | 1200 | 1750 |
| Flotationsbehälter BioPurit 3 | 330 | 0,7 | 1200 | 2250 |
| Flotationsbehälter BioPurit 5 | 450 | 1,0 | 1200 | 2750 |
| Flotationsbehälter BioPurit 8 | 800 | 1,6 | 1600 | 2750 |
| Flotationsbehälter BioPurit 10 | 900 | 2,0 | 1600 | 2750 |
| Schwimmerbehälter BioPurit 12 | 1000 | 2,4 | 1600 | 2250 |
| Schwimmerbehälter BioPurit 15 | 1125 | 3 | 1600 | 2250 |
| Schwimmerbehälter BioPurit 20 | 1250 | 4 | 2000 | 2250 |
Merkmale der Station Flotenk SeptiX
Wartung einmal im Jahr, vollständige Autonomie und effiziente Filterung.
ModellnameVolumen, lDurchmesser, mmLänge, mm
| Flotationstank SeptiX 2 | 2000 | 1000 | 2700 |
| Flotationstank SeptiX 3 | 3000 | 1200 | 3900 |
| SeptiX 4 Schwimmertank | 4000 | 1200 | 3800 |
| Flotationstank SeptiX 5 | 5000 | 1600 | 2700 |
| Flotationstank SeptiX 6 | 6000 | 1600 | 3200 |
| Schwimmertank SeptiX 10 | 10000 | 1600 | 5200 |
| Flotationstank SeptiX 12 | 12000 | 1800 | 5100 |
| Flotationstank SeptiX 15 | 15000 | 1800 | 6200 |
Kosten (Preis) einer Klärgrube Flotenk
ModellnamePreis, reiben
| Flotationsbehälter STA 1.5 | 27700 |
| Flotationsbehälter STA 2 | 36700 |
| Flotationsbehälter STA 3 | 47700 |
| Flotationsbehälter STA 4 | 76700 |
| Flotationsbehälter STA 5 | 92700 |
| Flotationsbehälter STA 6 | 112700 |
| Flotationsbehälter STA 10 | 137700 |
| Flotationsbehälter BioPurit 2 | 61110 |
| Flotationsbehälter BioPurit 3 | 68310 |
| Flotationsbehälter BioPurit 5 | 84510 |
| Flotationsbehälter BioPurit 8 | 110610 |
| Flotationsbehälter BioPurit 10 | 130410 |
| Schwimmerbehälter BioPurit 12 | 138510 |
| Schwimmerbehälter BioPurit 15 | 147600 |
| Schwimmerbehälter BioPurit 20 | 193610 |
| Flotationstank SeptiX 2 | 40608 |
Wenn man sich auf die zahlreichen Bewertungen der Besitzer der Klärgrube konzentriert, können eine Reihe von Vorteilen dieses Geräts unterschieden werden.
- Dreistufiges Abwasserreinigungsverfahren.
- Die Festigkeit des Materials gewährleistet die Langlebigkeit der Station und ihre Zuverlässigkeit.
- Völlige Energieunabhängigkeit.
- Der Betrieb der Klärgrube muss nicht ständig überwacht werden.
- Die Unmöglichkeit, das Gerät aufzutauchen, da keine Nähte an der Struktur vorhanden sind.
- Ein einzigartiges System von Wasserdichtungen, das dazu dient, die Wasserabläufe vom Fettfilm zu reinigen.
- Rohranschlüsse mit Gummimanschetten, die für Transportfähigkeit und Komfort bei der Installation der Station sorgen.
- Minimales Risiko von Geräteschäden.
Diese Klärgrube erfordert nur minimale Wartung. Für einen effizienten Betrieb reicht es aus, die Station ein- bis zweimal im Jahr von Schlamm und Abfall zu reinigen.
Modellprogramm: Technische Merkmale
Flotenk-Klärgruben sind zwei- oder dreiteilige (je nach Modifikation) Behälter mit Löchern im oberen Teil für die Hälse und in den Endwänden für die Einlass- und Auslassrohre.
Gehäuse für Klärgruben bestehen aus wasserdichtem Verbundmaterial - Polyester-Glasfaser. Es besteht aus Polyesterharzen und glasverstärkenden Komponenten.

Die Flotenk STA-Behandlungsanlagen sind zusätzlich zum Glasfasertank ausgestattet mit:
- 160-mm-Manschetten (zum Befestigen von Ausschnitten);
- 100-mm-Manschetten (zur Befestigung von Düsen);
- PVC-Steckdose;
- technischer Pass;
- Empfehlungen zur Verwendung von Bioenzymen (sofern die Installationstechnologie deren Verwendung vorsieht).
Flotenk STA 1,5 m³
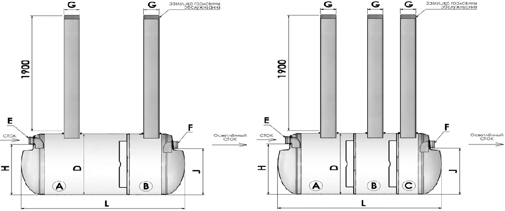
Die Klärgrube Flotenk STA - 1.5 ist die stromsparendste Installation der gesamten Modellreihe. Es besteht aus einem einteiligen zweiteiligen Körper.
In der Einheit findet gleichzeitig eine mechanische und biologische Abwasserreinigung unter Beteiligung anaerober Mikroorganismen statt. Der Reinigungsvorgang läuft in folgender Reihenfolge ab:
Das Abwasser fließt durch die Schwerkraft durch das Einlassrohr in das Vorklärbecken (Abschnitt A). In diesem Stadium setzt sich die Flüssigkeit ab.Feste Bestandteile setzen sich am Boden der Kammer ab, Fettbestandteile sammeln sich auf der Oberfläche in Form eines Films (werden mit der Zeit zu einer Kruste) und Wasser verbleibt im mittleren Teil.
Gleichzeitig mit der mechanischen Beruhigung finden im Abschnitt A biologische anaerobe Prozesse statt. Sie werden durch die lebenswichtige Aktivität einer speziellen Bakterienart ausgelöst, für die eine sauerstofffreie Umgebung die besten Lebensbedingungen sind.
Durch Fermentation werden biologische Substanzen (Eiweiße, Kohlenhydrate, Fette) zu Methan, Kohlendioxid und Wasserstoff zersetzt.
- Aus dem Vorklärbecken tritt die teilweise gereinigte Flüssigkeit durch die Blockierlöcher (im mittleren Teil des Tanks, unter dem Fettfilm, aber über dem festen Sediment) in Abschnitt B ein. In dieser Kammer erfolgt die Abwasserbehandlung mit anaeroben Mikroorganismen und mechanisch Besiedelung weiter.
- Aus Kammer B werden die Abwässer durch das Auslassrohr zur Nachbehandlung zu den Filterfeldern geleitet.
Der Hersteller gibt im Produktpass eine Tabelle mit den wichtigsten technischen Indikatoren der Abwasserqualität vor und nach der Behandlung in Flotenk STA-Klärgruben an.
Tabelle: Abwasserkennwerte am Auslauf der Klärgrube Flotenk

Flotenk STA ab 2 m³
Installationen mit einem Volumen von 2 m³ oder mehr haben einen Glasfaserkörper, der in drei Kammern unterteilt ist.

Die Einheiten werden durch Modelle mit verschiedenen Kapazitäten von 2 bis 25 m³ dargestellt.
Technische Parameter von Flotenk STA-Klärgruben mit einer Kapazität von 2-25
Bei der Auswahl eines Gerätemodells empfiehlt der Hersteller, sich an den Normen von SNiP 2.04.01-85 zu orientieren, die den durchschnittlichen Wasserverbrauch pro Person regeln.
Der Reinigungsprozess in den Geräten folgt dem gleichen Prinzip wie beim Modell STA-1.5.Die Kammern A und B dienen als Vor- und Nachklärbecken. Jedoch, Diese Klärgruben haben eine Kamera C, in dem die Endklärung der Flüssigkeit erfolgt. Zone B ist mit Zone C durch einen Blocker (hydraulische Dichtung) verbunden. Die gereinigten Abwässer werden durch das Auslassrohr aus Zone C zu den Infiltrationsfeldern geleitet.

Flotenk STA JA
Die neue Klärgrube Flotenk STA YES kann als modifizierte Version der oben beschriebenen Zweikammereinheit bezeichnet werden. Das Gerät funktioniert nach dem gleichen Prinzip, hat auch einen Fiberglaskörper. Die Kläranlage unterscheidet sich nur in vergrößerten Dimensionen. Laut Hersteller kann ein Gerät dieser Kapazität bis zu 5 Personen bedienen.


Welche Modelle bietet der Hersteller an?
Die Reinigungsausrüstung der Triton-Linie beinhaltet die biologische Behandlung des Abwassers mit Nachbehandlung im Boden. Die Modelle unterscheiden sich in der Menge des verarbeiteten Abwassers, der Größe und der Installationsmethode.
Triton-Mini
Tankvolumen - 750 l, Wandstärke - 8 mm. Ein kleiner, wirtschaftlicher Modellsumpf, einfach zu bedienen und zu installieren, der starken Frösten standhalten kann. Passt der Familie zu dienen 2 Leute.
Innerhalb von zwei Tagen Klärgrube triton mini kann bei maximaler Belastung 500 Liter Abwasser reinigen (wenn 5 Personen im Haus leben). Um zu verhindern, dass der Behälter mit festen Abfällen verstopft, müssen sie einmal im Jahr abgepumpt werden.

Triton-Mini ist eine großartige Option für eine Klärgrube, deren Installation nicht so schwierig ist, selbst durchzuführen
Klärgrube Triton-Micro
Volumen - 450 l, Produktivität - 150 l / s. Die beste Option für den vorübergehenden Aufenthalt einer durchschnittlichen Familie (1 bis 3 Personen). Kleines Volumen, einfach zu transportieren und zu installieren. Kompakt Klärgrube triton micro kann autonom für ein Gästehaus oder Badehaus genutzt werden.Es lockt mit günstigen Kosten: Ein Set mit Infiltrator, Deckel und Hals kostet etwa 12.000 Rubel.

Triton-Micro eignet sich für den Einbau beim Bau eines Landhauses
Klärgrube Triton-N
Gesamtkapazität von 1000 l bis 40000 l. Wandstärke - 14-40 mm. Eine gute Wahl für Besitzer eines persönlichen Grundstücks mit einer kleinen Fläche (es besteht keine Möglichkeit, einen Filterstandort auszustatten) sowie einem hohen Grundwasserspiegel. Die verschleißfeste und langlebige Klärgrube Triton n ist versiegelt und besteht aus Polyethylen, das mehr als 50 Jahre halten kann.

Triton-N Klärgruben werden auf Bestellung gefertigt, wenn das fertige Modell nicht passt
Klärgrube Triton-T
Ein Dreikammer-Polyethylentank, der eine kleine unabhängige Kläranlage darstellt. Volumen - von 1000 l bis 40000 l. Versorgt problemlos ein großes Haus mit 1 bis 20 oder mehr Personen. Befindet sich die Triton-Klärgrube unterhalb des Infiltrators, ist eine Entwässerungspumpe installiert, die teilweise gereinigtes Wasser daraus zum Filterfeld pumpt.

Triton-T ist eine großartige Option für ein Landhaus mit ständigem Wohnsitz
Klärgrube Triton-ED
Volumen - 1800-3500 l, Produktivität - 600-1200 l / s, es kann horizontal und vertikal sein. Das Design besteht aus zweiteiligen Modulen, in denen Wasser von Verunreinigungen gereinigt wird. Von Abschnitt zu Abschnitt wird das Wasser zu 65% gereinigt, dann gelangt es in die Infiltratorzone und von dort in den Boden. Die Abmessungen des absorbierenden Bereichs hängen vom Volumen der Klärgrube ab. Das Material für die Herstellung des Produkts – extrudiertes Polyethylen – ist so langlebig, dass die Klärgrube Triton ed mehr als 50 Jahre einsatzbereit ist.

Vergessen Sie bei der Installation einer Klärgrube nicht die Zufahrtsstraße für den Abwasserwagen
Gerät und Funktionsprinzip
CJSC "Flotenk" liefert auf den Markt der GUS-Staaten eine breite Palette von Systemen zur Organisation der autonomen Kanalisation mit eigener Kläranlage. Das Sortiment umfasst energieabhängige und stromunabhängige Versorgungseinrichtungen zur Lösung verschiedenster Probleme privater Hausbesitzer.
Äußerlich ist die Flotenk-Kläranlage ein zylindrischer Behälter, der horizontal oder vertikal installiert ist. Im Inneren ist der Hohlraum des Geräts in zwei oder drei Abschnitte unterschiedlicher Größe unterteilt.
Um Abflüsse zwischen verschiedenen Abteilungen der Klärgrube zu bewegen, sind in den Trennwänden spezielle Überlauflöcher vorgesehen.
Bildergalerie Foto von Kläranlage für autonomes Abwasser Gehäusematerial Klärgruben Absetzbecken der Serie FloTenk STA Dreikammerausführung der Absetzbecken Grundkläranlage Aushub in Lehmboden FloTenk BIO Puritstation Schacht der Kläranlage Flotenk
Das erste Fach ist das größte und fungiert als Sumpf. Hier werden zunächst alle Abwässer aus dem Haus gesammelt.
Das Abwasser wird allmählich gesammelt und abgesetzt. Am Boden sammeln sich die festen Bestandteile des Abwassers sowie Inhaltsstoffe, die von Mikroorganismen nicht verarbeitet werden können.
Auf der Oberfläche von Abfällen, die leichter als Wasser sind, bildet sich ein Fettfilm. Bei der Ansammlung von Primärabwässern nimmt das Volumen des Sumpfinhalts zu und der Flüssigkeitsspiegel steigt. Mit der Zeit erreicht es das Überlaufloch, durch das die beim Absetzen teilweise gereinigte Flüssigkeit in das zweite Abteil der Klärgrube gelangt.
Das Diagramm zeigt das Gerät der Flotenk-Klärgrube, die aus drei Kammern unterschiedlicher Größe besteht. In der ersten wird das Abwasser abgesetzt und in den anderen beiden werden sie aktiv gereinigt (+)
Hier arbeiten Mikroorganismen weiter an der Behandlung von bereits von Feststoffanteilen befreitem Abwasser. Wenn das Volumen der Abflüsse im zweiten Abschnitt der Klärgrube zunimmt, steigt der Flüssigkeitsspiegel wieder und erreicht das Überlaufloch, das zum dritten Abschnitt führt.
Hier wird das Abwasser abschließend bis zu einem als vertretbar erachteten Grad geklärt, um die anfallende Flüssigkeit in das umgebende Erdreich zu überführen. Um flüssig behandelte Abwässer aus einer Klärgrube zu entfernen, ist es notwendig, ein spezielles Filterfeld in der Dicke des Bodens zu schaffen.
Dieses Diagramm ermöglicht es Ihnen, sich ein Bild von den Funktionsprinzipien der Klärgrube der Marke Flotenk zu machen. Abwasser aus Wohngebäuden gelangt in das Gerät, wird biologisch behandelt und in das Filterfeld (+) geleitet
Zu diesem Zweck werden in einiger Entfernung von der Klärgrube eine Reihe von Gräben oder eine Grube hergestellt, an deren Boden ein Sand- und Kiesfilter angeordnet ist. Es enthält Schichten aus Sand, Schotter und Kies. Zunächst wird in die Gräben eine Schicht aus filterndem Kies-Sand-Verfüllmaterial gelegt, auf der ein System von perforierten Rohren - Abflüssen - platziert wird.
Das Entwässerungssystem wird mit Geotextil umwickelt und abgedeckt. Jeder Zweig des Filterfeldes ist mit einem eigenen Belüftungssteigrohr ausgestattet, um das bei der Abwasserbehandlung entstehende Methan zu entfernen.
Die Nachbehandlung unter Verwendung eines solchen Filters macht das resultierende Abwasser völlig sicher für die Umwelt. Darüber hinaus setzen die in der Bodenbelüftungszone enthaltenen Mikroorganismen auch den Prozess der Verarbeitung von mit dem Abwasser anfallenden Stoffresten fort.
Der Filterbereich für die Bodennachbehandlung kann nur in durchlässigen Böden angeordnet werden: Sand, Gavial, Kiesel, Schotterablagerungen - in Gesteinen, die verarbeitete Abwässer aufnehmen und passieren können. Darüber hinaus zwischen dem Grundwasserspiegel am Standort Konstruktion und Bodenentwässerungssystem muss mindestens einen Meter betragen
Von oben hat jeder Abschnitt der Flotenk-Klärgrube eine Betriebsöffnung, die einen ständigen Zugang zum Gerät ermöglicht. Dies schafft Bedingungen für die erfolgreiche Vitalaktivität aerober Bakterien und ermöglicht es Ihnen auch, die bei der biologischen Abwasserbehandlung anfallenden Gase aus dem Tank zu entfernen.
Natürlich sammelt sich allmählich fester Abfall im Sumpf an. Ein erheblicher Teil davon wird zu neutralem Schlamm. Je mehr Abfall, desto kleiner die Kapazität der Klärgrube, d.h. seine Leistung. Das erste Fach der Klärgrube sollte regelmäßig mit einer Saugpumpe gereinigt werden.
Überblick über das Sortiment
Klärgruben der Flotenk-Serie werden in verschiedenen Modifikationen hergestellt. Jeder Eigentümer von Vorortimmobilien kann problemlos ein für seine Bedingungen geeignetes Gerät auswählen. Im Angebot finden Sie folgende Modelle von Klärgruben:
- Flotenk STA 1.5 - das Gerät ist für eine dreiköpfige Familie ausgelegt. Die Klärgrube kann bis zu 0,5 Kubikmeter Abwasser pro Tag verarbeiten. Die Kosten für ein solches Produkt betragen etwa 30.000 Rubel;
- Flotenk STA 2 - das Gerät ist für eine vierköpfige Familie ausgelegt. Die Klärgrube kann bis zu 0,6 Kubikmeter Abwasser pro Tag verarbeiten. Die Kosten für ein solches Produkt betragen etwa 38.000 Rubel;
- Flotenk STA 3 - das Gerät ist für eine sechsköpfige Familie ausgelegt. Die Klärgrube kann bis zu 1,0 Kubikmeter Abwasser pro Tag verarbeiten. Die Kosten für ein solches Produkt betragen etwa 49.000 Rubel;
- Flotenk STA 4 - Das Gerät ist für ein Haus mit acht ständigen Bewohnern ausgelegt. Die Klärgrube kann bis zu 1,4 Kubikmeter Abwasser pro Tag verarbeiten. Die Kosten für ein solches Produkt betragen etwa 76 Tausend Rubel;
- Flotenk STA 5 - Das Gerät ist für ein Haus mit zehn ständigen Bewohnern ausgelegt. Sie kann bis zu 1,6 Kubikmeter Abwasser pro Tag verarbeiten. Die Kosten für ein solches Produkt betragen etwa 90.000 Rubel;
Genau diese Modelle sind am beliebtesten Besitzer von Landhäusern. Daneben stellt das Unternehmen aber auch leistungsfähigere Flotenk-Klärgruben her. So können Sie ein Flotenk STA 10-Gerät kaufen, eine solche Klärgrube kann bis zu 3,2 Kubikmeter Abwasser pro Tag verarbeiten. Dieses Gerät kann mehrere Häuser gleichzeitig bedienen.
Wie installiere ich eine Flotenk-Klärgrube?
1. Stellen Sie vor der Installation der Station sicher, dass Sie sie nicht in der Nähe des Hauses, von Brunnen und Trinkwasserquellen aufstellen.
2. Wenn Sie alle erforderlichen Hygienestandards berücksichtigt haben, besteht der erste Schritt bei der Installation der Installation in der Vorbereitung der Grube. Das ausgehobene Loch sollte der Größe der Station entsprechen. Legen Sie ein Sandkissen auf den Boden der Grube. Um der Struktur zusätzliche Festigkeit zu verleihen, installieren Sie außerdem eine Betonplatte und befestigen Sie Ankerringe am Boden der Platte, die in ein Edelstahlkabel eingefädelt werden müssen. Das Kabel wird verwendet, um der Installation zusätzliche Unbeweglichkeit zu verleihen.

3. Nachdem Sie ein Loch gegraben haben, bringen Sie alle erforderlichen Abwasserrohre dorthin, die zuerst gereinigt werden müssen. Achten Sie darauf, die Rohre in einem gewissen Winkel zu verlegen, damit das Abwasser von alleine abfließt. Rohre sollten auch isoliert werden. Fixieren Sie den Lüfter-Riser.
4. Bohren Sie mit Diamantbohrern spezielle Löcher in die Wände der Grube, in die Abwasserrohre verlegt werden.
5. Laden Sie die Station in die Grube, installieren Sie die oberen Hälse. Achten Sie darauf, das System mit sauberem Wasser zu füllen, bevor Sie die Erde erneut auslegen. Filterausrüstung und Infiltrationstunnel installieren.

Es gibt drei Arten von Klärgruben:
- Flotationsbehälter STA;
- Flotationsbehälter BioPurit;
- SeptiX Schwimmertank.
Merkmale der Station Flotenk STA
Das Material, aus dem das Gerät besteht, ist Glasfaser. Da alle Teile in großen Mengen in Fabriken hergestellt werden, besteht kein Zweifel an ihrer Qualität, Dichtigkeit und Festigkeit. Diese Station hat eine zylindrische Form, die im Inneren in eine bestimmte Anzahl von Abschnitten unterteilt ist. Je größer das Volumen der Anlage, desto höher die Produktivität. Die Station muss bis zu dreimal im Jahr gereinigt werden.

| Flotationsbehälter STA 1.5 | 1500 | 500 | 1000 | 2100 |
| Flotationsbehälter STA 2 | 2000 | 700 | 1000 | 2700 |
| Flotationsbehälter STA 3 | 3000 | 1000 | 1200 | 2900 |
| Flotationsbehälter STA 4 | 4000 | 1300 | 1200 | 3800 |
| Flotationsbehälter STA 5 | 5000 | 1700 | 1600 | 2700 |
| Flotationsbehälter STA 6 | 6000 | 2000 | 1600 | 3200 |
| Flotationsbehälter STA 10 | 10000 | 3300 | 1600 | 5200 |
Wie man mit eigenen Händen eine Senkgrube baut, lesen Sie hier
Lesen Sie im Artikel, wie Sie Kunststoffrohre verbinden, wie Sie Kunststoffrohre verbinden
Merkmale der Station Flotenk BioPurit
Die Station besteht aus vier Abschnitten und muss einmal im Jahr gewartet werden. Die Modellnummer im Namen entspricht der Anzahl der Personen, die dieses Gerät verwenden können (spezifisches Modell).
| Flotationsbehälter BioPurit 2 | 200 | 0,4 | 1200 | 1750 |
| Flotationsbehälter BioPurit 3 | 330 | 0,7 | 1200 | 2250 |
| Flotationsbehälter BioPurit 5 | 450 | 1,0 | 1200 | 2750 |
| Flotationsbehälter BioPurit 8 | 800 | 1,6 | 1600 | 2750 |
| Flotationsbehälter BioPurit 10 | 900 | 2,0 | 1600 | 2750 |
| Schwimmerbehälter BioPurit 12 | 1000 | 2,4 | 1600 | 2250 |
| Schwimmerbehälter BioPurit 15 | 1125 | 3 | 1600 | 2250 |
| Schwimmerbehälter BioPurit 20 | 1250 | 4 | 2000 | 2250 |
Fazit
Wenn Sie sich entscheiden, Ihren Vorort mit einem autonomen Abwassersystem auszustatten, können Sie auf eine Klärgrube nicht verzichten.Dieses Gerät ist in der Lage, Abflüsse zu reinigen und für die Umwelt sicher zu machen. Im Angebot finden Sie viele Modelle von Klärgruben, eines der beliebtesten sind Flotenk-Produkte. Sie leisten hervorragende Arbeit bei der Abwasserbehandlung, sind relativ kostengünstig und einfach zu installieren und zu bedienen. Und dank des hochfesten Materials, das bei ihrer Herstellung verwendet wird, werden Flotenok-Klärgruben mehrere Jahrzehnte lang reibungslos funktionieren.












































